The Library will be closed Monday, Jan. 19th in observance of Martin Luther King, Jr. Day.

Sustainability

ESG at NCL

Credit: Sustainable Libraries Initiative
Credit: Sustainable Libraries Initiative

 

 

ESG (Environmental, Social, Governance) concerns are quite naturally threaded through everything we do. That’s because we define sustainability as the triple bottom line: environmentally sound, socially equitable, economically feasible. Every decision we make—from our new building to our collections, programs, and staff—is made with this in mind.

New Library Entrance
Credit: © Jeff Goldberg/Esto

Our Building

Look for signage at the Library or see below to learn about many of our building’s sustainable features. Some might surprise you! 

 

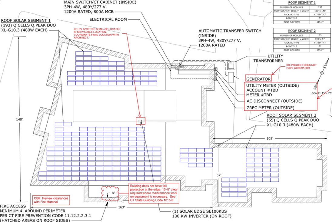
model showing solar panel placement

Solar Panels

 

The Library is an all-electric, net zero–ready building, and the solar panels on the roof get us almost halfway there, supplying 45% of our annual electricity needs. Their bifacial design lets light reflected off the light-colored roof be harvested too, resulting in a higher yield.

Water Fill Up Station

Drinking Water

Water fountains with bottle fillers encourage use of reusable water bottles, and water filters in the Tate Conference Room, Kend Kitchen, and Staff Room sinks provide clean, great-tasting water right out of the tap.

Roof planting sample

Green Roof

 

Living roofs help insulate buildings, absorb excess stormwater, reduce summer urban heat, and create habitat. Ours is a shallow modular tray design seeded with hardy sedum succulents.

induction

Induction Cooktop

The stovetop in our Kend Kitchen stays cold to the touch even when set to full heat. It works through electromagnetism: a coil generates a magnetic current that heats any metal container placed on it. This instant, high-precision temperature control is much more efficient and safer than a combustion-based gas stove.

Credit: © Jeff Goldberg/Esto
Credit: © Jeff Goldberg/Esto

Bird Glass Frit

The bird/book pattern on the Library’s glass is a custom ceramic frit that deters birds from flying into the windows. It also cuts down on visual glare and excess heat gain.

Credit: © Jeff Goldberg/Esto
Credit: © Jeff Goldberg/Esto

Wood Selection

Birch and hickory, two tree species native to our region, are used in the Library’s millwork. The veneer is from Forest Stewardship Council Controlled sources, the panels are produced without formaldehyde, and the rotary-cut figured grain generates the least waste in manufacturing. 

Credit: MillerKnoll
Credit: MillerKnoll

Broom Chairs

These chairs in the Children’s Program Rooms are made from 75% waste polypropylene and 15% reclaimed wood fiber that would normally be swept into the trash.

Credit: © Jeff Goldberg/Esto
Credit: © Jeff Goldberg/Esto

Felt Ceilings

Ceiling shapes for sound absorption in the Children’s and Teen Rooms come from ethically sourced wool from sheep in South Africa, Australia, and New Zealand, and are mounted on PET panels made in large part from recycled plastic containers.

Living room skylights
Credit: © Jeff Goldberg/Esto

Living Room Skylights

Many skylight and ceiling widths, angles, and shapes were modeled in our quest to bring as much daylight (with minimal direct glare) into the Living Room in the building’s core. 

stone veneer
Credit: © Jeff Goldberg/Esto

Local Stone Veneer

Clad with locally quarried granite, the Library’s stone looks solid but is only one inch thick, cutting down on production and transportation emissions and making room for insulation behind it.

milk jug
Credit: MillerKnoll

Milk Jug Furniture

The lounge chairs on the Bartlett Roof Terrace are made from recycled milk jugs at Loll’s factory in Minnesota. About eight milk jugs go into every pound of chair. At the end of the chair’s life, Loll will take it back to make it into new furniture.

lighting
Credit: © Jeff Goldberg/Esto

Networked Lighting

All the lights in the building are controlled by a smart networked lighting system that adjusts the intensity throughout the day. This gives us just the right amount of light while saving energy. 

pozzotive

Pozzotive Concrete

A facility in Beacon Falls, CT ground up recycled glass into a pozzolan that substituted up to 30% of the Portland cement in the concrete mix. This resulted in a nearly one-to-one 30% carbon emissions reduction while improving structural strength.

moss wall

Preserved Moss Wall

The presence of plants indoors leads to a host of cognitive and health benefits. The Concourse’s preserved moss wall requires no maintenance (besides occasional dusting).

vapor fireplace

Vapor Fireplace

This fireplace uses LED lights projected onto a small amount of water vapor to give the effect of a warm, cozy fire while using only a small amount of energy. 

stair
Credit: © Jeff Goldberg/Esto

Cattail Stair

Biophilic design harnesses our innate attraction to nature to improve wellbeing. Inspired by Harry Bertoia’s sculptures, this stair space evokes coastal Connecticut marshes, from the grass cloth walls to the “cattail heads” at the top of the stair cage.

all electric
All-Electric 

All-Electric Systems

Hidden between the skylights above the Living Room is a row of electric heat pumps that use the gas expansion-compression cycle to generate heated and cooled refrigerant, which is sent as needed to each building zone. Fresh air is supplied through a system that recovers heat and humidity for maximum energy efficiency.

Recognition